OneLife葵デュース【★浴室乾燥機・独立洗面台・2口コンロ】の料金や設備情報
-
- 運営会社
-
- 株式会社One Life(取引形態:貸 主)
- 大阪府大阪市福島区福島3丁目14-29 アルティジア新福島ビル 6A
-
- 連絡先
-
- 0120-097-437 06-4796-3630
(直接お電話でもお問合せ可能です。)
メールでのお問合せはこちらから
- 住所
- 愛知県名古屋市中区葵1丁目27-33
- 最寄り駅
- 名古屋市営地下鉄東山線新栄町(愛知)駅 徒歩3分 名古屋市営地下鉄東山線千種駅 徒歩12分 名古屋市営地下鉄桜通線車道駅 徒歩13分
写真をクリックすると左に大きく表示されます。
※間取図・画像と現況が異なる場合は現況を優先とします。
お急ぎの方は直接お電話でもお問合せ可能です。
- 運営会社
- 株式会社One Life
- 連絡先
- 0120-097-437 06-4796-3630
物件情報
| 住所 |
愛知県名古屋市中区葵1丁目27-33 |
| 最寄り駅 |
名古屋市営地下鉄東山線新栄町(愛知)駅 徒歩3分 名古屋市営地下鉄東山線千種駅 徒歩12分 名古屋市営地下鉄桜通線車道駅 徒歩13分 |
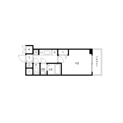
| 間取 |
1K |
入居可能人数 |
2名 |
| 築年数 |
2022年1月 |
構造 |
鉄筋コンクリート造 / 14階建 |
| 面積 |
21.20m² |
| 契約形態 |
定期借家 |
| 最低契約日数 |
1ヶ月 |
保証人 |
不必要 |
| 契約時に必要な書類等 |
身分証明書 |
| その他の契約等の注意点 |
★ハイシーズンは、別途シーズン料金が発生いたします。詳細はお問い合わせください。 |
| 設備 |
|
エアコン、テレビ、ドライヤー、洗濯機、掃除機、電子レンジ、冷蔵庫 、イス、カーテン付き、デスク、ベッド 、ガスキッチン、ガスコンロ、システムキッチン 、シャワー、洗面所独立、脱衣所、浴室乾燥機 、ゴミ箱、ハンガー 、ガス、トイレ、下水道、給湯設備、上水道、浴室 、エレベーター、オートロック 、インターネット対応(無料)、クローゼット、バス・トイレ別、フローリング、洗浄機能付き便座、洗濯機置場(室内)、暖房完備、冷暖房完備 |
オプション
布団オプション
| 寝具代 |
・掛け布団 ・ベッドパット ・枕 ・バスマット ・ベッドシーツ ・掛け布団カバー ・ピローケース |
| 8800円 |
| 毛布代 |
| ・毛布 |
| 4400円 |
地図
| 住所 |
愛知県名古屋市中区葵1丁目27-33 |
| 最寄り駅 |
名古屋市営地下鉄東山線新栄町(愛知)駅 徒歩3分 名古屋市営地下鉄東山線千種駅 徒歩12分 名古屋市営地下鉄桜通線車道駅 徒歩13分 |
お急ぎの方は直接お電話でもお問合せ可能です。
- 運営会社
- 株式会社One Life
- 連絡先
- 0120-097-437 06-4796-3630
料金
|
賃料 |
光熱費 |
清掃費 |
| ショート(1ヶ月以上~3ヶ月未満) |
7,800円~/日 234,000円~/月 |
賃料に含む |
16,500円/回(契約時) |
| ミドル(3ヶ月以上~7ヶ月未満) |
7,800円~/日 234,000円~/月 |
賃料に含む |
22,000円/回(契約時) |
| ロング(7ヶ月以上~12ヶ月未満) |
7,800円~/日 234,000円~/月 |
賃料に含む |
44,000円/回(契約時) |
| その他費用 |
基本バック代16,500円(契約時)別途要 |
| お支払い方法 |
分割可、一括可、カード可、振込可 |
- ※ご契約日数によって料金が異なる場合があります。詳しくは物件の運営会社にお問合せ下さい。
お急ぎの方は直接お電話でもお問合せ可能です。
- 運営会社
- 株式会社One Life
- 連絡先
- 0120-097-437 06-4796-3630