マンスリーマンションドットコム
MENU
マンスリーマンションドットコムについて
初めてご利用される方へ
サイトのご利用方法
よくあるご質問
このサイトについて
運営会社
プライバシーポリシー
オーナー様へ
サイトポリシー
サイトマップ
お問合せ
フリーステイ南森町 ★『南森町』駅まで徒歩5分★ ★『梅田』近接エリア★の物件詳細
ホーム
フリーステイ南森町 ★『南森町』駅まで徒歩5分★ ★『梅田』近接エリア★
戻る
物件写真1を表示中
次へ
運営会社
株式会社フォーリアライズ
大阪府大阪市中央区南久宝寺町2丁目6-3 For Realize BLDG 2階
0120-117-856
/
06-4704-8700
メールでお問合せ
電話でお問合せ
物件概要
住所
大阪府大阪市北区天神西町3番6号
地図
最寄り駅
大阪メトロ谷町線南森町駅 徒歩5分
JR東西線大阪天満宮駅 徒歩5分
京阪本線北浜(大阪)駅 徒歩6分
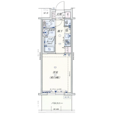
間取
1K
入居可能人数
2名
築年数
2014年4月
構造
鉄筋コンクリート造 / 15階建
面積
23.31m²
契約形態
定期借家
最低契約日数
7日
保証人
不必要
契約時に必要な書類等
個人:身分証明書(顔写真付) 法人:会社謄本
その他の契約等の注意点
繁忙期(2月~4月)やGW・お盆・年末年始は賃料が加算されます。(詳しくはお問合せ下さい)
クレジット決済は1か月以上のご契約に限り対応可能です。
設備
エアコン、テレビ、ドライヤー、洗濯機、掃除機、電気ポット、電子レンジ、冷蔵庫 、カーテン付き、シーツ類、ソファー、テーブル、テレビ台、ベッド、寝具一式 、ガスキッチン、ガスコンロ 、シャワー、トイレ用ブラシ、洗面器、洗面所独立、脱衣所、浴室乾燥機 、ハンガー、物干し竿、目覚まし時計 、ガス、トイレ、下水道、給湯設備、上水道、分譲タイプ、浴室 、エレベーター、オートロック、宅配BOX 、バス・トイレ別、フローリング、洗浄機能付き便座、洗濯機置場(室内)、冷暖房完備
備品オプション
炊飯器
3300円
・炊飯器本体(3合炊き)、・計量カップ、・しゃもじ
衣類用アイロン
3300円
・アイロン本体、・アイロン台
調理器具セット
4400円
・フライパン、・片手鍋、・まな板、・包丁、・お玉、・フライ返し、・菜箸、・ボール、・キッチンバサミ、・ピーラー
食器セット
3300円
・グラス、・カップ、・スクエアプレート皿、・丸プレート皿、・お茶碗、・カトラリー、(お箸/大小スプーン/大小フォーク/ナイフ)、・食器用スポンジと洗剤、、※食器とカトラリーは各2つのご用意します。、(1名入居で各1つをご希望の場合はご相談下さい。)
タオルセット
660円
・フェイスタオル×1枚、・バスタオル×1枚、・バスマット×1枚
※レンタル品となります。
※ご利用期間により金額が変動するレンタル品があります。
※日割りでのレンタルは行っておりません。
※在庫によりご希望に添えない場合がございますのでご了承ください。
おすすめコメント
★ダブルベッド設置★
◎アクセス
Osaka Metro谷町線・堺筋線『南森町』駅 徒歩5分
JR東西線『大阪天満宮』駅 徒歩5分
京阪中之島線『なにわ橋』駅 徒歩5分
京阪本線『北浜』駅 徒歩6分
Osaka Metor堺筋線『北浜』駅 徒歩6分
京阪本線 『淀屋橋』駅 徒歩9分
◎周辺環境
・コンビニ(セブンイレブン)徒歩4分
・コンビニ(ローソン)徒歩5分
・スーパー(KOHYO)徒歩7分
・スーパー(ライフ)徒歩11分
・京阪シティーモール 徒歩14分
・郵便局 徒歩3分
・中之島公園 徒歩5分
・医院(内科)徒歩5分
・徒歩9分以内に5線6駅
・徒歩5分の『南森町』駅から、『東梅田』駅まで1駅2分
・Osaka Metro谷町線『東梅田』駅まで徒歩16分
・Osaka Metro御堂筋線『梅田』駅まで徒歩20分
●中之島公園
大阪市初の公園として誕生した中之島公園。
中央公会堂や大阪市役所など文化、行政の機能が充実しており、
散策やジョギングが楽しめます。
●天神橋筋商店街
南北に約2.6㎞、日本一の『天神橋筋商店街』が毎日のショッピングに便利です。グルメスポットも豊富にあります。
●大阪天満宮
学問の神様で有名な天満宮。
年末年始や受験シーズンには、多くの参拝者で賑わいます。
日本三大祭の一つ「天神祭」は、毎年7月24・25日に行われます。
※写真には撮影用小物やオプション品が含まれています。
※お部屋の間取り・家具・家電の内容・配置図が、画像・間取図と異なる場合は現状を優先とさせていただきます。
※交通所要時間は日中平常時のもので、乗り換え・待ち時間等は含まれておりません
料金
賃料
光熱費
清掃費
スーパーショート
~1ヶ月未満
3,740円/日
880円/日
11,000円/回(契約時)
ショート
1ヶ月以上~3ヶ月未満
3,300円/日 99,000円/月
880円/日 26,400円/月
22,000円/回(契約時)
ミドル
3ヶ月以上~7ヶ月未満
3,200円/日 96,000円/月
880円/日 26,400円/月
27,500円/回(契約時)
ロング
7ヶ月以上~12ヶ月未満
3,200円/日 96,000円/月
880円/日 26,400円/月
33,000円/回(契約時)
その他費用
【共益費】 300円/日
【事務手数料】 3300円/回
【くらしあんしんサポート費用】150円/日
【2名入居の場合】 光熱費のみ550円/日加算
【ハイシーズン料金】
繁忙期(2~4月)やGW・お盆・年末年始は賃料が加算されます。
詳しくはお問合せ下さい。
【分割払い】
別途手数料が加算されます。
レンタル品についてはお問い合わせ下さい。
お支払い方法
分割可、一括可、カード可、振込可、現金可
※ご契約日数によって料金が異なる場合があります。詳しくは物件の運営会社にお問合せ下さい。
メールでお問合せ
電話でお問合せ
メールで送る
LINEで送る
トップへ
当サイトではCookieを使用します。Cookieの使用に関する詳細は「
プライバシーポリシー
」をご覧ください。
OK