マンスリーマンションドットコム
MENU
マンスリーマンションドットコムについて
初めてご利用される方へ
サイトのご利用方法
よくあるご質問
このサイトについて
運営会社
プライバシーポリシー
オーナー様へ
サイトポリシー
サイトマップ
お問合せ
【✨🌅❄年末年始大感謝祭❄🌅✨】【禁煙🚭/Wi-Fi無料🌐】マイナビSTAY川崎Axis 1001の物件詳細
ホーム
キャンペーン実施中
【✨🌅❄年末年始大感謝祭❄🌅✨】【禁煙🚭/Wi-Fi無料🌐】マイナビSTAY川崎Axis 1001
戻る
物件写真1を表示中
次へ
運営会社
株式会社マイナビ
東京都中央区銀座4丁目12-15 歌舞伎座タワー26階
050-5459-5487
メールでお問合せ
電話でお問合せ
物件概要
住所
神奈川県川崎市川崎区本町1丁目3-21
地図
最寄り駅
JR京浜東北・根岸線川崎駅 徒歩9分
JR南武線川崎駅 徒歩9分
京急大師線京急川崎駅 徒歩6分
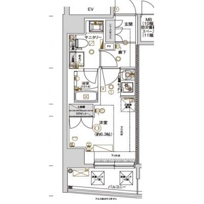
間取
1R
入居可能人数
2名
築年数
2025年6月
構造
鉄筋コンクリート造 / 11階建
面積
20.95m²
契約形態
定期借家
最低契約日数
30日
保証人
不必要
契約時に必要な書類等
顔写真付きの身分証が必要です。
身分証明書には運転免許証の他、所持人記入欄記載のあるパスポート、マイナンバーカード、住民基本台帳カード、在留カード、特別永住者証明書、運転経歴証明書がご利用いただけます。
その他の契約等の注意点
お支払い方法は下記の通りです。
■ 個人契約の場合
クレジットカード決済(※原則一括払いのみ)
※分割払いをご希望の場合は、別途審査がございます。
■ 法人契約の場合
請求書払い(銀行振込)
設備
エアコン、テレビ、洗濯機、掃除機、電気ポット、電子レンジ、冷蔵庫 、イス、カーテン、カーテン付き、デスク、ベッド 、お玉、まな板、フライパン、フライ返し、食器類、鍋、包丁 、トイレットペーパー、シャワー、タオル、ボディータオル、洗面所独立、脱衣所、浴室乾燥機 、スリッパ、ティッシュ、ハンガー、室内物干し、物干し竿 、トイレ、下水道、給湯設備、上水道、浴室 、エレベーター、オートロック、宅配BOX 、インターネット対応(無料)、クローゼット、バス・トイレ別、フローリング、角部屋、洗浄機能付き便座、洗濯機置場(室内)、暖房完備、冷暖房完備
布団オプション
寝具セット(レンタル)
16500円
敷布団×1
シーツ×1
掛け布団×1
掛けカバー×1
枕×1
枕カバー×1
おすすめコメント
■マイナビBizのご案内■
日本最大の採用支援会社である株式会社マイナビが、
・家具家電付き社宅
・プロジェクト型短期社宅
・福利厚生施設
・繁忙期の応援時の短期社宅
・外国籍の方の研修時の短期社宅
・新卒研修時の短期社宅
などの住まい探しの課題を不動産会社と共同開発し、問題解決を致します。
ダイバーシティー化する社宅のカタチ。
人材最大手のマイナビが企業様ごとにオンデマンドでご提供することで
貴社のお悩みを解決します!
※間取り・設備が、図面・写真と異なる場合は現状を優先致します。
※号室によって内装カラー・間取り・仕様が異なります。ご了承ください。
料金
✨🌅❄年末年始大感謝祭❄🌅✨賃料お値引き&初期費用38,500円OFF他
特典内容
期間限定のお得キャンペーンを開催中🍊賃料お値引き&初期費用38,500円OFF他!
【 特典① 】賃料期間限定 お値下げ!
【 特典② 】契約事務手数料 通常22,000円が無料!
【 特典③ 】寝具レンタル代 通常16,500円が無料!
【 特典④ 】入居サポート費用 日額110円/日(3,300円/月)も無料!
対象期間
空室がなくなり次第終了します。
利用条件
◆ご新規のお客様【限定】◆ご覧のサイト名称をお伝えいただいたお客様
ショート
1ヶ月以上?3ヶ月未満
4,300円/日 129,000円/月
660円/日 19,800円/月
27,500円/回(契約時)
ミドル
3ヶ月以上?7ヶ月未満
4,100円/日 123,000円/月
660円/日 19,800円/月
27,500円/回(契約時)
ロング
7ヶ月以上?12ヶ月未満
4,100円/日 123,000円/月
660円/日 19,800円/月
27,500円/回(契約時)
その他費用
【共益費】 600円/日 18,000円/月 (非課税)
【2名様以上でのご利用の場合】
表示の光熱費に加え、1名様追加につき550円/日(税込)を申し受けます。(ただし小学生以下の方、無料)
【繁忙期退去特別費用】55,000円(税込)/回
退去日が以下の「繁忙期間」に該当する場合のみ発生する費用です。
繁忙期間:2026年3月20日~2026年4月12日
※各金額は変更される場合がございますのでご了承ください。
※写真はお部屋のイメージです。ラグなどの室内装飾はございません。
お支払い方法
分割可、一括可、カード可、振込可
※ご契約日数によって料金が異なる場合があります。詳しくは物件の運営会社にお問合せ下さい。
メールでお問合せ
電話でお問合せ
メールで送る
LINEで送る
トップへ
当サイトではCookieを使用します。Cookieの使用に関する詳細は「
プライバシーポリシー
」をご覧ください。
OK